2013 yılında İstanbul’da kurulan Cesur Elektromekanik hem mühendislik hem de mimari uygulama alanlarında tasarım hizmet veren firmadır. Cesur Elektromekanik, kurulduğu günden bugüne çalıştığı kurumsal firmalar ile birçok projeyi başarıyla tamamlamıştır.

Bizi Takip Edin

Breadcrumb

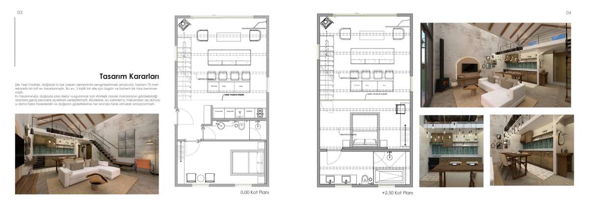
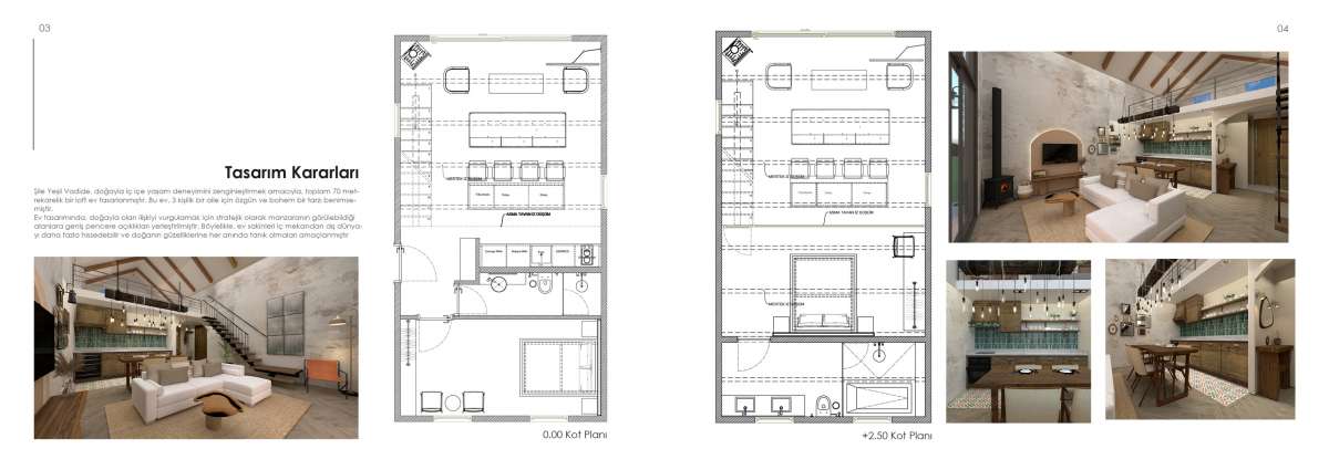
ŞİLE TAŞ EV PROJESİ

Şile'nin eşsiz doğasında yer alan Yeşil Vadi’de, doğayla iç içe yaşam deneyimini zenginleştirmek amacıyla, toplam 70 metrekarelik üç adet loft ev tasarlanmıştır. Bu ev, 3 kişilik bir aile için özgün bohem ve rustik bir tarz benimsenmiştir.